Desenho e Corte das plataformas
Blogue do Clube de Robótica e Programação da Escola Secundária António Damásio, em Lisboa
sábado, 18 de fevereiro de 2017
quinta-feira, 16 de fevereiro de 2017
Arduino - Pavilhão Conhecimento
18 de Fevereiro | Programar com Arduino
O Arduino é uma plataforma electrónica de prototipagem open-source baseada em hardware e software de fácil utilização e que permite criar objectos e ambientes interactivos. Neste workshop, vamos conhecer alguns componentes electrónicos e aprender a programar e a utilizar esta plataforma, através da realização de um projecto ligado à sustentabilidade do nosso planeta.
Das 15.30 às 18.30 | M/10 | Gratuito | Inscrições on-line* ou no próprio dia na bilheteira
segunda-feira, 6 de fevereiro de 2017
Construção de um ROBÔ móvel
Para a construção de um robô móvel iremos considerar três áreas de intervenção.
1. Mecânica - estrutura de suporte
2. Eletrónica - circuitos de controlo, sensores, acionadores eletricos, alimentação elétrica
3. Software - programas para "dar vida" ao robô
1. Mecânica
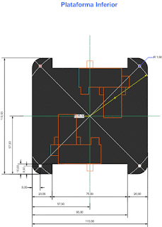
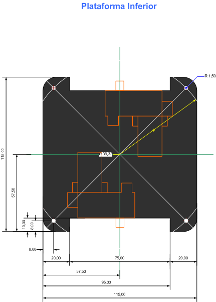
Sugere-se a utilização de PVC expandido, por ser mais facilmente trabalhado e suficientemente resistente. Assim, iremos utilizar três placas quadradas de 3mm de espessura com 115mm de lado, que deverão ser trabalhadas de acordo com os desenhos do projeto.
A plataforma inferior terá a função principal de suportar os dois motores elétricos.
A plataforma central terá a função principal de acolher os circuitos de interface para sensores e acionadores.
A plataforma superior terá a função principal de acolher o circuito com o microcontrolador (arduino).
Na ligação entre as plataformas serão utilizados espaçadores em poliamida: quatro M3 fêmea/macho de 35mm e quatro M3 fêmea/fêmea de 30mm.
1. Mecânica - estrutura de suporte
2. Eletrónica - circuitos de controlo, sensores, acionadores eletricos, alimentação elétrica
3. Software - programas para "dar vida" ao robô
1. Mecânica
Sugere-se a utilização de PVC expandido, por ser mais facilmente trabalhado e suficientemente resistente. Assim, iremos utilizar três placas quadradas de 3mm de espessura com 115mm de lado, que deverão ser trabalhadas de acordo com os desenhos do projeto.
A plataforma inferior terá a função principal de suportar os dois motores elétricos.
A plataforma central terá a função principal de acolher os circuitos de interface para sensores e acionadores.
A plataforma superior terá a função principal de acolher o circuito com o microcontrolador (arduino).
Na ligação entre as plataformas serão utilizados espaçadores em poliamida: quatro M3 fêmea/macho de 35mm e quatro M3 fêmea/fêmea de 30mm.
Subscrever:
Mensagens (Atom)









